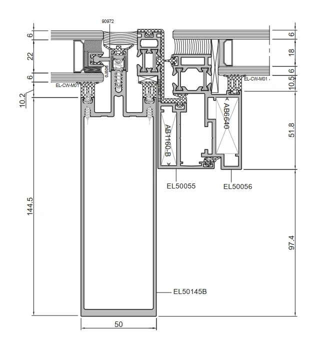
EL50 New
برند: ABESCON
نام محصول:
سیستم کرتین وال استیک ترمال بریک
مزایا:
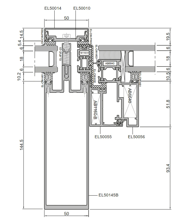
برند: ABESCON
نام محصول:
سیستم کرتین وال استیک ترمال بریک
مزایا: