CW50-G
برند: ABESCON
نام محصول:
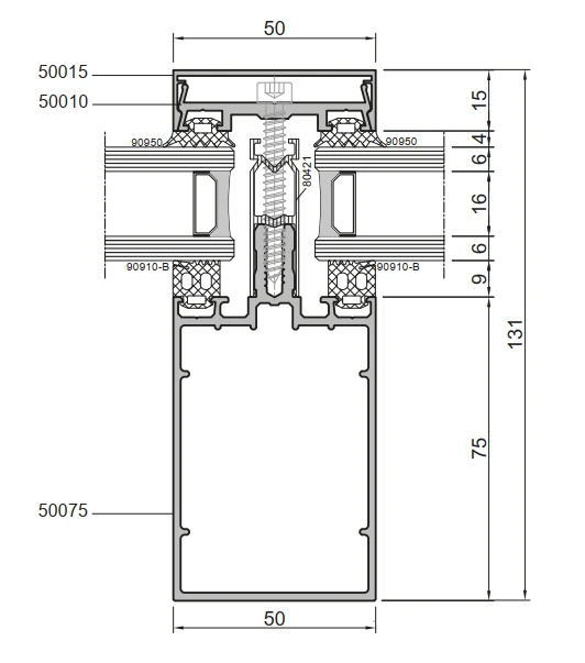
سیستم کرتین وال استیک ترمال بریک
مزایا:
برند: ABESCON
نام محصول:
سیستم کرتین وال استیک ترمال بریک
مزایا: