صنایع آلومینیوم آبسکون
سیستم کرتین وال
abescon-logo

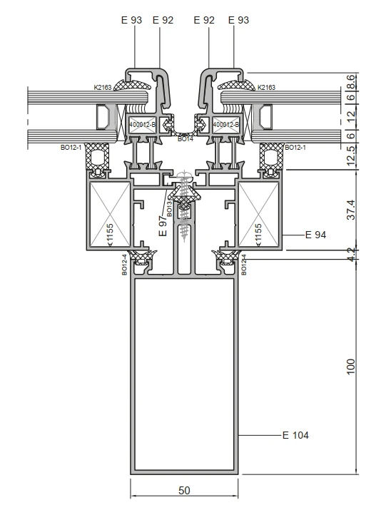
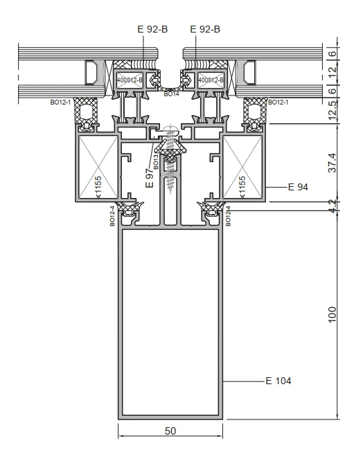
سیستم کرتین وال ترمال بریک کاست سیستم کرتین وال ترمال بریک کاست سیستم کرتین وال ترمال بریک کاست سیستم کرتین وال ترمال بریک کاست
abescon-1663483747-Abescon-Curtainwall-AB50-T.webp

AB50-T

برند:   ABESCON


نام محصول:

سیستم کرتین وال ترمال بریک کاست

مزایا:


  • لینک دانلود کاتالوگ
  • 1663483876-Abescon-Cassette-Thermal-Break-Curtainwall-System-AB50-T-Catalogue.pdf   1663483876-Abescon-Cassette-Thermal-Break-Curtainwall-System-AB50-T-Catalogue.pdf  دانلود