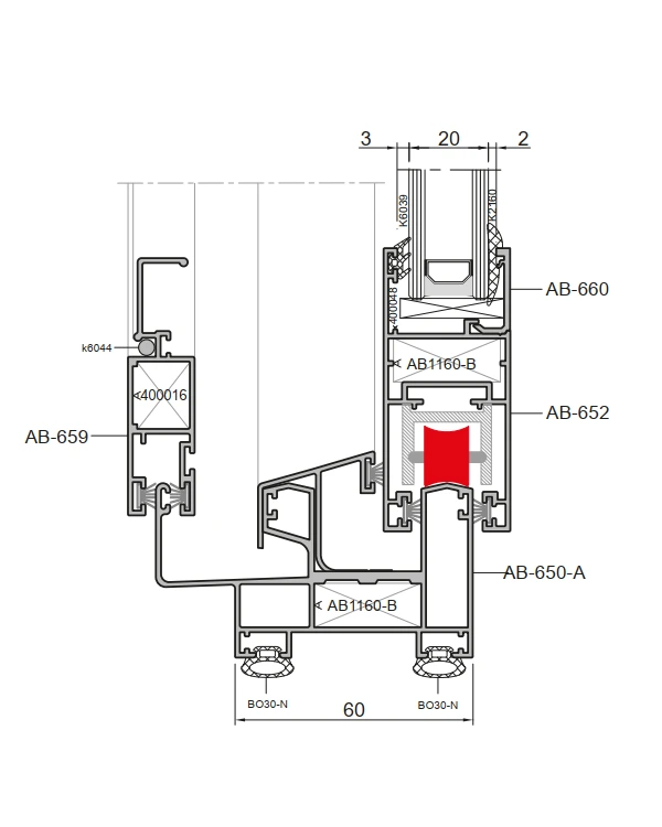
SN60
برند: ABESCON
نام محصول:
سیستم کشویی غیر ترمال بریک
مزایا:
برند: ABESCON
نام محصول:
سیستم کشویی غیر ترمال بریک
مزایا: